Rodiný dom Košice Krásna
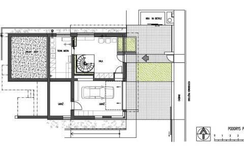
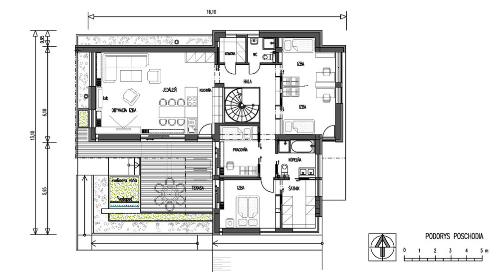
Navrhovaná je originálna architektúra, s určujúcim vplyvom plochej strechy a kolmého prieniku hmôt „kvádrov“ prízemia a poschodia.. Rodinný dom je navrhovaný ako dvojpodlažný objekt s obytnou časťou na druhom nadzemnom podlaží. Z hľadiska dispozično-prevádzkového je diferencovaná nočná a denná zóna . V ich prieniku sú sústredené obslužné a komunikačné funkcie s kumuláciou inštalačných rozvodov, sústredených v technickej miestnosti na prízemí. Hlavné pobytové priestory sú vizuálne prepojené s exterierom zasklenými stenami. Točité schodisko je vyvedené až na strechu 2. podlažia. Schodisková presklená nádstavba presvetľuje vnútorné priestory až do prízemia. Náväzná strešná terasa umožní relax s panoramatickým výhľadom na horský masív Slánskych vrchov.
Statická doprava je riešená vo forme 1,5 garážového parkingu kombinovaného s dvoma otvorenými parkovacími miestami na vlastnom pozemku.
Povrchové úpravy priečelí sú navrhované v kombinácii silikátovej bielej omietky, ušľachtilých omietkovín na soklovej časti, a veľkoplošných fasádnych vláknocementových obkladov a drevených obkladov. identických s materialom letnej terasy. Ako strešná krytina plochých striech je navrhovaná PVC fólia čiastočne chránená zásypom z triedeného štrku.
Navrhovaný je tradičný konštrukčný systém. z tehelných tvárnic. Obvodové konštrukcie a časť vnútorných nosných konštrukcii na 1. NP sú navrhované z betónových debniacich tvárnic. Stropné konštrukcie sú navrhované z monolitického železobetónu.
Plocha strecha nad jednopodlažnou časťou je navrhovaná s krytinou s fólie Fatrafol, s „vnútornými“ strešnými zvodmi a štrkovým zásypom. Zateplenie objektu je kontaktným zatepľovacím systémom v kombinácii s technológiou zateplenia prevetrávanej fasády z drevených lamiel.
Projekt..... 2011-2012, Realizácia.... r. 2020
ZÁKLADNÉ ÚDAJE
počet osôb / počet obytných miestnosti: ................................................4-5 osôb / 4-5 obytných miestností
zastavaná plocha 1. NP (bez terasy a závetria): .........................................................................139,50 m²
celková úžitková plocha (bez terasy a balkóna):...........................................................................191,00 m²
celková obytná plocha:...................................................................................................................67,00 m²
celkový obostavaný priestor (bez základov a terás):...................................................................830,00 m3







