Rodinný dom Bratislava Jarovce
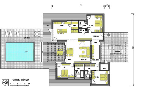
Veľkoryso a netradične riešená koncepcia jednopodlažného rodinného domu na rovinatom pozemku na slnečnej lokalite a dostatočnou výmerou záhrady. Netradičné architektonické stvárnenie dodáva domu požadovanú symbiózu dôstojnosti a extravagancie. Dominantným a určujúcim riešením netradičnej dispozície je centrálne riešenie hlavnej obytnej časti, s decentným prevýšením a „bazilikálnym prisvetlením.
Všetky obytné priestory sú priamo prepojené na exterierové terasy so zachovaním intimity spálni a jednotlivých izieb. Veľkoryso navrhnutá kuchyňa umožňuje jej dokonalú funkčnosť aj vo vzťahu k prepojeniu na stolovanie v jedálni aj terase. Navrhované prekryté „átrium“ ho dokonalé opticky izoluje od okolitých susedov... Nadštandardné izby sú navrhované s možnosťou ich využitia bez rušenia dennej časti, čo vytvára predpoklady aj pre možnosť dvojgeneračného bývania. Technologické zariadenia sú sústredené v blokovej forme do technickej miestnosti.
Navrhované sú klasické stavebné murované technológie so strešnými konštrukciami v kombinácii oceľ, drevo a povlakové krytiny. Zateplenie objektu je kombinované kontaktným zatepľovacím systémom s technológiou prevetrávaných fasád s drevených lamiel.
ZÁKLADNÉ ÚDAJE
počet osôb / počet obytných miestnosti: ......................................4-6 osôb / 5 obytné miestností
zastavaná plocha 1. NP (bez terasy a závetria): .........................................................236,00 m²
celková úžitková plocha (bez terasy):...........................................................................180,60 m²
celková obytná plocha:..................................................................................................114,00 m²
celkový obostavaný priestor (bez základov a terás):.....................................................940,00 m3




