Rodinný dom Velky Šariš
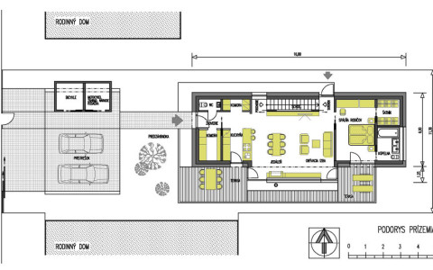
Na extrémne úzkom a stiesnenom pozemku je navrhovaná jednoduchá architektúra s určujúcim vplyvom pultovej strechy. Rodinný dom je navrhovaný ako dvojpodlažný objekt s obytnou dennou časťou a technickým vybavením na prízemí a nočnou časťou na druhom nadzemnom podlaží. Obslužné funkcie s kumuláciou inštalačných rozvodov sú sústredené v technicko- hospodárskom suteréne objektu. Hlavné pobytové priestory sú vizuálne prepojené s exterierom zasklenými stenami...Statická doprava je riešená vo forme 2 stáni pod prístreškom (garážou). Predná aj zadná garážová stena je tvorená posuvnými vrátami, umožňuje to priechod do uzavretého dvora...
Navrhovaný je tradičný konštrukčný systém. Obvodové konštrukcie sú navrhované z tehelných tvárnic hr. 300 mm. Dtto vnútorné nosné murivo je navrhované z tehelných tvárnic. Strop nad prízemím je monolitický železobetónový. Strecha drevená pultová dvojplášťová s plechovou falcovanou krytinou. Povrchové úpravy priečelí sú navrhované v kombinácii odvetraných obkladových systémov vláknocementových dosák a klasických horizontálnych drevených obkladov zo sibírskeho smrekovca.
Zateplenie objektu je kontaktným zatepľovacím systémom v hrúbkach potrebných na dosiahnutie parametrov pre nízkoenergetické domy. Zateplenie podláh a strešnej konštrukcie dtto.
ZÁKLADNÉ ÚDAJE
počet osôb / počet obytných miestnosti: ...................................................4-6 osôb / 4 obytné miestností
zastavaná plocha (bez): ............................................................................................................111,70 m²
celková úžitková plocha (bez terasy, bez garáže):....................................................................148,50 m²
celková obytná plocha:................................................................................................................91,00 m2
celkový obostavaný priestor (bez základov a terás):.....................................................................698 m3




