Rodinný dom Batizovce
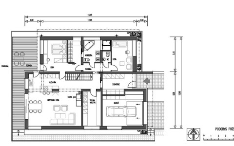
Navrhovaná je originálna architektúra, s určujúcim vplyvom pultovej šikmej strechy a prieniku jednopodlažného „kvádra“. Rodinný dom je navrhovaný ako jednojpodlažný objekt s obytným podkrovím bez podpivničenia. Z hľadiska dispozičnoprevádzkového je diferencovaná nočná a denná zóna . V ich prieniku sú sústredené obslužné funkcie s kumuláciou inštalačných rozvodov. Technologické zariadenia a komíny sú sústredené v technickej miestnosti umiestnenej v centre objektu. Hlavné pobytové priestory sú vizuálne prepojené s exterierom zasklenými stenami... Obytné izby na poschodí sú presvetlené rohovými pásovými oknami s orientáciou na južnú stranu.
Povrchové úpravy priečelí sú navrhované v kombinácii silikátovej bielej omietky, ušľachtilých omietkovín na soklovej časti a veľkoplošných fasádnych drevoplastových obkladov drevených obkladov identických s materialom rámov okien, dverí a zasklených stien. Ako strešná krytina je navrhovaná keramická krytina .
Navrhovaný je tradičný konštrukčný systém. Obvodové konštrukcie a dtto vnútorné nosné murivo sú navrhované z tehelných tvárnic . Stropné konštrukcie sú navrhované z monolitického železobetónu. Nosná konštrukcia 2.NP je tvorená priečnými nosnými – šikmými stenami na ktoré je uložená drevená konštrukcia krovu. Plocha strecha nad jednopodlažnou časťou je navrhovaná s krytinou s fólie Fatrafol, s „vnútornými“ strešnými zvodmi a štrkovým zásypom. Zateplenie objektu je kontaktným zatepľovacím systémom v kombinácii s technológiou zateplenia prevetrávanej fasády z drevených lamiel.
Projekt..... 2011, Realizácia.... 2014
ZÁKLADNÉ ÚDAJE
počet osôb / počet obytných miestnosti: ................................................5-7 osôb / 5 obytných miestností
zastavaná plocha 1. NP (bez terasy): ........................................................................................205.70 m²
celková úžitková plocha (bez terasy a balkóna):........................................................................216,00 m²
celková obytná plocha:.................................................................................................................93,00 m²
celkový obostavaný priestor (bez základov a terás):.................................................................740,00 m3




