Rodinný dom Prešov Šalgovík
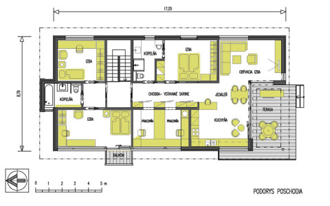
Vzhľadom k tomu, že stavba stojí v okrajovej polohe domoradia, bolo možné ju navrhnúť ako solitérnu, skulpturálne vzdušnú architektúru, ktorá zdanlivo nevýhodný severný svah využila vo svoj prospech. Rodinný dom je navrhovaný ako dvojpodlažný, bez suterénu, s tzv. bývaním v jednej úrovni. 1.NP je uvoľnené, minimálny obostavaný priestor slúži vstupným funkciam, alt slúži na kryté odstavenie automobilov. Dispozično-prevádzkové riešenie umožní prípadné dvojgeneračné bývanie, s možnosťou variability dispozície a plošných nárokov obidvoch bytových jednotiek. Horizontálna línia hlavného bloku je akcentovaná šikminou technickej nástavby s predprípravou pre fotovoltaiku... Dispozično-prevádzkové riešenie je totálne podriadené nárokom a požiadavkam investora na vlastný štýl bývania a nevychádza zo zaužívaných schém. Jednoúrovňové dispozičné členenie obytných priestorov je prepojené priamo na slnečnú terasu a záhradu.
Nepriaznivé hydrogeologické vlastnosti pozemku viedli k tomu, že dom stojí na zalomenej monolitickej doske s vymeneným podložím. Zvislé nosné konštrukcie v 1. NP sú navrhované z oceľových stlpov v kombinácii s monolitickou železobetonovou konštrukciou v strednej časti objektu.a železobetonovým stropom. Na 2. NP je navrhovaná „drevostavba“ ako kombinácia stenového a skeletového systému. Obvodové steny a strešná konštrukcia vo viacvrstvovej sendvičovej skladbe a dtto podlahové konštrukcie, sú navrhované s hrúbkami tepelnoizolačnej vrstvy zodpovedajúcimi nárokom energeticky pasívneho domu. Originálne je navrhnutá drevená plochá dvojplášťová strecha s povlakovou krytinou, so zaatikovanými žľabmi (bez nutnosti termokáblovej ochrany), s dôkladným kombinovaným prevetrávaním odvetrávacími turbínami a usmerneným „komínovým“ efektom s vyvedením nad strešnú nadstavbu. Povrchové úpravy stien sú kombináciou veľkoplošných preglejkových obkladov z brezy, zatepľovacieho kontaktného systému a omietky. Použité tepelnoizolačné vrstvy zodpovedajú nárokom energeticky pasívneho domu.
Dom ma viacero netradičných riešení a zvláštností: Nemá komín, plynovú prípojku nepotrebuje ani kotolňu prípadne technickú miestnosť....V dome sa nenachádzajú klasické dvere, priestory sú oddelené plnými posuvnými dverami so zabudovateľnými púzdrami alt. posuvnými sklenenými dverami v hlinikových rámoch. Dom nepotrebuje zádverie. Všetky interierové drevené konštrukčné prvky sú „bez chémie“ t.j. náterov a chemickej konzervácie. Z technickej stránky sa pôvodná koncepcia energeticky pasívneho domu (jeden z prvých projektov na Slovensku) po rozsiahlom štúdiu problematiky a z nej vyplývajúcich obmedzení, ktoré neboli v súlade s užívateľskými nárokmi investorov, zmenila na kategóriu energeticky úsporný dom. Vykurovanie je elektrické, podlahové v kombinácii s konvektormi.
Projekt: 2004, Realizácia stavby: 2005 − 2010
ZÁKLADNÉ ÚDAJE O STAVBE
počet osôb / počet obytných miestnosti: .................................4-6 osôb / 5 obytných miestností
zastavaná plocha 1. NP (bez terasy a závetria): .........................................................41,30 m²
zastavaná plocha 2. NP (bez terasy): .........................................................................143,80 m²
celková úžitková plocha (bez terasy a balkóna):.........................................................142,00 m²
celková úžitková plocha vrátane terás a parkingu:......................................................205,00 m²
celková obytná plocha:..................................................................................................73,81 m²
celkový obostav. priestor (včítane základov a podzakladia):.....................................679,00 m3





