Rodinný dom Prešov Teriakovce
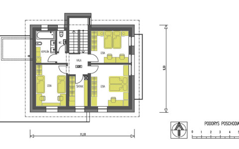
Základnou požiadavkou investora s veľkou rodinou bolo navrhnúť rodinný dom v zmysle hesla, za málo peňazí veľa muziky. Dvojpodlažnosť a kompaktnosť navrhovanej hmotovopriestorovej skladby vyplynula z potreby maximálnej úspornosti a rentability návrhu. Navyše s požiadavkou na nadštandardné veľkosti izieb. Tieto požiadavky bolo možné naplniť, vzhľadom také dispozičné riešenie, pri ktorom nie je ani m2 „balastného“ priestoru vo forme zbytočných chodieb a hál....
Navrhovaná je jednoduchá architektúra s určujúcim vplyvom plochej strechy a kolmého prieniku hmôt prístreškov s hlavnou hmotou objektu. Rodinný dom je navrhovaný ako dvojpodlažný objekt s obytnou dennou časťou a technickým vybavením na prízemí a nočnou časťou na druhom nadzemnom podlaží. Obslužné funkcie s kumuláciou inštalačných rozvodov sú sústredené pri technickej miestnosti. Hlavné pobytové priestory sú vizuálne prepojené s exterierom zasklenými stenami...Statická doprava je riešená vo forme 1 krytého parkingu pod prístreškom kombinovaného s jednym otvorenými parkovacími miestami na vlastnom pozemku.
Navrhovaný je tradičný konštrukčný systém. Obvodové konštrukcie sú navrhované z tehelných tvárnic hr. 300 mm. Dtto vnútorné nosné murivo je navrhované z tehelných tvárnic. Strop nad prízemím je monolitický železobetonový. Strecha drevená plochá dvojplášťová s povlakovou krytinou a štrkovým zásypom, odvetravaná veternými turbínami. Povrchové úpravy priečelí sú navrhované v kombinácii silikátovej bielej omietky, ušľachtilých omietkovín na soklovej časti, a fasádnych obkladov z umelého kameňa.
Zateplenie objektu je kontaktným zatepľovacím systémom v hrúbkach potrebných na dosiahnutie parametrov pre nízkoenergetické domy. Zateplenie podláh a strešnej konštrukcie dtto. Konštrukcie prístreškov sú staticko- konštrukčne nezávislé na hlavnom objekte vzhľadom k eliminácii tepelných mostov.
Architektonická štúdia 2013, Projekt 2014, Realizácia 2016
ZÁKLADNÉ ÚDAJE
počet osôb / počet obytných miestnosti: ....................................4-6 osôb / 4 obytné miestností
zastavaná plocha (bez): ..............................................................................................101,70 m²
celková úžitková plocha (bez terasy):...........................................................................148,50 m²
celková obytná plocha:..................................................................................................78,35 m²
celkový obostavaný priestor (bez základov a terás):......................................................698 m3




