Rodinný dom Bratislkava Koliba
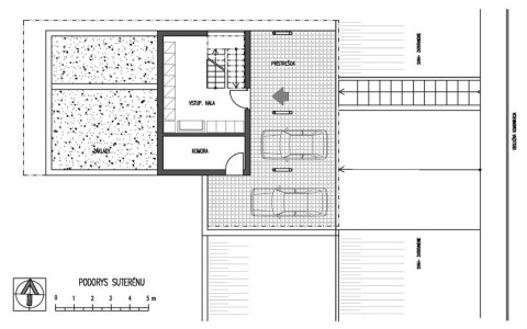
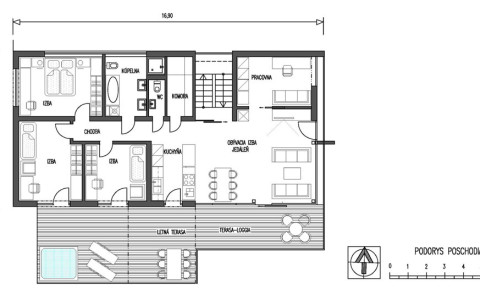
Navrhovaná je originálna architektúra, s určujúcim vplyvom plochej strechy a kolmého prieniku hmôt „kvádrov“ prízemia a poschodia.. Rodinný dom je navrhovaný ako dvojpodlažný objekt s obytnou časťou na druhom nadzemnom podlaží. Z hľadiska dispozično-prevádzkového je diferencovaná nočná a denná zóna . V ich prieniku sú sústredené obslužné a komunikačné funkcie s kumuláciou inštalačných rozvodov, sústredených v technickej miestnosti na prízemí. Hlavné pobytové priestory sú vizuálne prepojené s exterierom zasklenými stenami.
Statická doprava je riešená vo forme parkingu- krytého prístrešku pre 2 stánia. Povrchové úpravy priečelí sú navrhované v kombinácii silikátovej bielej omietky, ušľachtilých omietkovín, a veľkoplošných fasádnych drevených obkladov, identických s materiálom letnej terasy. Ako strešná krytina plochých striech je navrhovaná PVC fólia.
Navrhovaný je tradičný konštrukčný systém. z tehelných tvárnic. Obvodové konštrukcie a časť vnútorných nosných konštrukcii na 1. NP sú navrhované z betónových debniacich tvárnic. Stropné konštrukcie sú navrhované z monolitického železobetónu.
Plocha strecha nad jednopodlažnou časťou je navrhovaná s krytinou s fólie Fatrafol, s „vnútornými“ strešnými zvodmi. Zateplenie objektu je kontaktným zatepľovacím systémom v kombinácii s technológiou zateplenia prevetrávanej fasády z drevených lamiel.
ZÁKLADNÉ ÚDAJE
počet osôb / počet obytných miestnosti: ..................................................4-5 osôb / 5 obytných miestností
zastavaná plocha 1. NP (bez terasy ): .........................................................................................142,00 m²
celková úžitková plocha (bez terasy ):..........................................................................................153,00 m²
celková obytná plocha:...................................................................................................................80,00 m²
celkový obostavaný priestor (bez základov a terás):...................................................................668,00 m3





