Rodinný dom Košice Pereš
Atypicky riešeny malý nízkoenergetický montovaný drevodom. Skulpturálne navrhnutá originálna hmota, kde forma sleduje vnútorné funkcie a tvar interieru (obytný priestor čiastočne cez 2 podlažia so skoseným podhľadom) ...
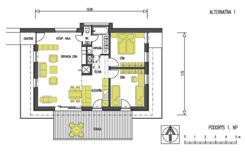
Návrh tohto rodinného je ale zároveň úsporný bez zbytočných priestorov, s čo najjednoduchším konštrukčným riešením. Dispozícia je atypická
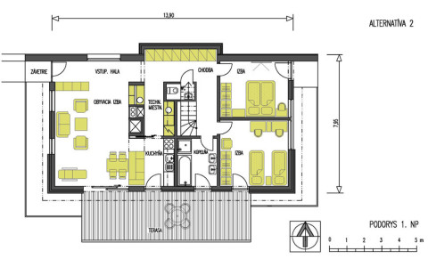
netradičná vymykajúca sa tradičným schémam. Nad stredným traktom je riešená podkrovná časť s pracovňou, (izbou) V alternatíve je možné riešenie
na väčšom pôdoryse...Obslužné funkcie s kumuláciou inštalačných rozvodov sú sústredené v technickom priestore v centre dispozície, čo umožňuje minimalizovať všetky rozvody v dome.... Hlavné pobytové priestory sú vizuálne prepojené s exterierom zasklenými stenami, s priamym prepojením na terasu...
Dispozícia objektu , hmotovopriestorové riešenie ako aj návrh okien a zasklených stien sú podriadené funkčným a technologickým nárokom a podmienkam na dosiahnutie parametrov nízkoenergetického domu.
Po konštrukčnej stránke je navrhovaný „klasický“ montovaný drevený konštrukčný systém stenovo skeletový so sendvičovými obvodovými stenami s kontaktným zateplením, kombinovaným s prevetrávaným obkladom. Strecha šikmá drevená pultová dvojplášťová s krytinou z plechových kaziet (šablón). Povrchové úpravy priečelí sú navrhované v kombinácii, ušľachtilej omietkoviny, a veľkoplošných fasádnych cembritových (alt. drevoplastových) obkladov.
ZÁKLADNÉ ÚDAJE
počet osôb / počet obytných miestnosti: .....................................3-4 osoby / 3 obytné miestností
zastavaná plocha (bez terasy): ........................................................................................90,40 m²
celková úžitková plocha (bez terasy):...............................................................................73,60 m²
celková obytná plocha:......................................................................................................50,20 m²
celkový obostavaný priestor (bez základov a terasy):..........................................................398 m3





