Rodinný dom Rusovce
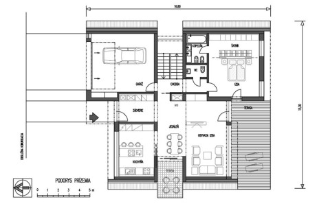
V okrajovej polohe developerskej projektu rodinnej zástavby investor požadoval originálne a moderné riešený koncept rodinného domu s dôrazom na netuctovosť riešenia architektúry. Navrhovaná skulpturálne poňatá architektúra je absolútne iná ako tradičné modernistické domy. S určitosťou sa nepodobá žiadnemu inému domu v... Rovinatý pozemok a vhodná orientácia pozemku umožňovala uplatniť v dispozícii optimálny návrh jednotlivých funkcii rodinného domu. Dispozično-prevádzkové riešenie hlavného podlažia diferencuje dennú a nočnú časť bytu s možnosťou nerušenej prevádzky izbového traktu na nadzemnom podlaží. Nadštandardne riešená spálňa rodičov je navrhnutá so samostatným hygienickým vybavením, šatňou a priamym výstupom na letnú terasu. Denné priestory včítane kuchyne sú priamo prístupné na terasy. Izby na podlaží majú možnosť využitia slnečnej strešnej terasy s ponukou pekných výhľadov na okolitú prírodnú scenériu.. Priestoru obývacej izby a jedálne dominuje mohutný krb.
Navrhované sú klasické stavebné murované technológie so železobetónovými monolitickými stropmi. Strešná konštrukcia s povlakovou krytinou a štrkovými zásypmi. Šikmé strešné konštrukcie sú navrhované z oceľovo- drevenej konštrukcie. Zateplenie objektu je kombinované kontaktným zatepľovacím systémom s technológiou prevetrávaných fasád z veľkoplošných drevo plastových dosiek. Všetky technologické zariadenia sú v blokovej forme sústredené v technickom zádverí a kapotované posuvnými dverami...
ZÁKLADNÉ ÚDAJE
počet osôb / počet obytných miestnosti: ....................................4-6 osôb / 4 obytné miestností
zastavaná plocha 1. NP (bez terás): ......................................................... ................209,00 m²
celková úžitková plocha (bez terás a loggii):...............................................................222,00 m²
celková obytná plocha:................................................................................................117,00 m²
celkový obostavaný priestor (bez základov a terás):...................................................795,00 m3





