Rodinný dom s apartmanom Tatranská Lomnica
Netradične navrhovaný rodinný dom v horskom prostredí. Požiadavka investora na veľkorysé riešenie bývania rodiny s odrastenými i deťmi „mimo dom.“
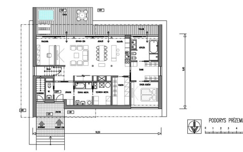
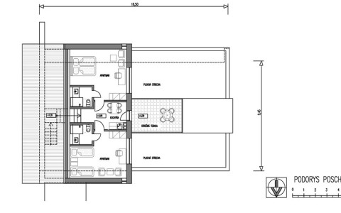
Základná požiadavka investora bola na netradičné riešenie stavby. Požiadavka na prízemné úrovňové bývanie a nezávislé bývanie hosťovského typu pre 2 rodiny bola vyriešena šikmou nádstavbou nad hlavnou hmotou, so samostatným vchodom a vybavenosťou pre 2 apartmány na poschodí so samostatnou strešnou terasou. Obidva apartmány sú orientované na exponovanú stranu s horskými štítmi. Prízemná časť s bývaním rodičov je navrhovaná v pozdlžnej dispozícii s postupným radením priestorov dennej časti bytu pozdlž južného priečelia a priebežnej terasy. Vizuálne sú tieto priestory smerované do vlastnej záhrady a v pokračovaní do príľahlého lesoparku. Z hlavných obytných priestorov je možné priame prepojenie na terasu včítane kuchyne a veľkej slnečnej kúpeľne. Dispozícia domu, hlavne vo vstupnej časti, je prispôsobená špecifickým nárokom profesie horského vodcu. Voľná dispozícia prízemia je členená nábytkovými deliacimi prvkami. Nočná časť bytu tvorí samostatnú prevádzkovu časť. Technologické zariadenia sú sústredené v technickej miestnosti.
Navrhovaný je tradičný konštrukčný systém doplnený oceľovým skeletom. Strop je monolitický železobetonový, Strecha plochá jednoplášťová s povlakovou krytinou a štrkovým zásypom. Nádstavba murovaná s dvojplášťovou drevenou strechou a drevenou roštovou terasou. Zateplenie objektu je kontaktným zatepľovacím systémom v kombinácii s technológiou zateplenia prevetrávanej fasády z drevených lamiel.
ZÁKLADNÉ ÚDAJE
počet osôb / počet obytných miestnosti: ......................................4-6 osôb / 4 obytné miestností
zastavaná plocha 1. NP (bez terasy a závetria): .........................................................152,00 m²
celková úžitková plocha (bez terasy a balkóna):...........................................................186,00 m²
celková obytná plocha:..................................................................................................94,00 m²
celkový obostavaný priestor (bez základov a terás):...................................................651,00 m3





