Vila Prešov Ľubotice
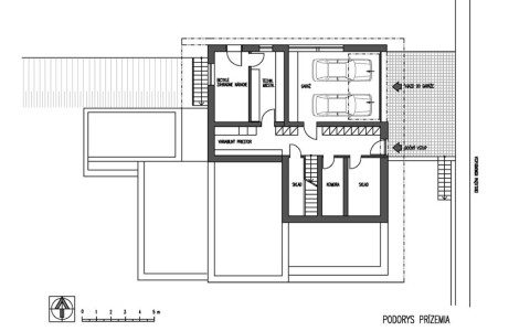
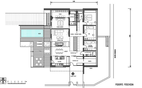
Na severnom svahovitom, rohovom pozemku so sklonom od cesty požadoval investor netradičnú, maximálne modernú architektúru s bývaním na jednej úrovni a v maximálnej miere s prepojením hlavných bytových funkcii s exterierovou záhradou. Sklon terénu je využitý na umiestnenie garáže, technických , obslužných a skladových priestorov v “podzemnom podlaží“. Zároveň z tejto úrovne je bočný vstup s vnútorným komunikačným prepojením na hlavný vstup s prízemia. Dispozičnoprevádzkové riešenie hlavného podlažia diferencuje dennú a nočnú časť bytu s možnosťou autonómnej prevádzky izieb vo východnom trakte. Spálňa rodičov, denné priestory včítane kuchyne sú priamo napojené na veľkú terasu. Terasu od príľahlej miestnej komunikácie oddeľuje originálne riešená lamelovo presklená stena. Na terasu nadväzuje bazén s protiprúdom a zásuvnou strechou. Schodiskový priestor je vyvedený až na strechu kde strešná terasa ponúka panoramatické výhľady na okolitú prírodnú scenériu. Zároveň strešná nádstavba tvorí svetlík presvetľujúci komunikačný priestor uprostred domu. Priestor obývacej izby od jedálne predeľuje panoramatický krb osadený v zelenom páse prenikajúceho z exterieru.
Navrhované sú klasické stavebné murované technológie so železobetónovými monolitickými stropmi. Strešná konštrukcia s povlakovou krytinou a štrkovými zásypmi. Strešná nádstavba oceľovo- drevená konštrukcia. Zateplenie objektu je kombinované kontaktným zatepľovacím systémom s technológiou prevetrávaných fasád z drevených lamiel. Všetky technologické zariadenia sú sústredené v technickej miestnosti.
ZÁKLADNÉ ÚDAJE
počet osôb / počet obytných miestnosti: ......................................................5-7 osôb / 5 obytných miestností
zastavaná plocha 1. NP (bez terasy a závetria): .............................................................................203,80 m²
celková úžitková plocha (bez terasy a balkóna):...............................................................................286,00 m²
celková obytná plocha:.....................................................................................................................106,00 m²
celkový obostavaný priestor (bez základov a terás):.....................................................................1128,00 m3





